Продается однокомнатная квартира, 63 кв.м., 4/22 эт

Обзор
Стоимость
11 000 000
РемонтХороший
БалконБалкон
Онлайн показмогу провести
Статус Недвижимости АвитоКвартира
АпартаментыНет
Право собственностиПосредник
Тип парковкиПодземная
Способ связи avitoПо телефону и в сообщениях
Узаконена ли планировкаНет
Есть ли право собственностиЕсть
Тип дома cianМонолитный
Комнат в квартире1
Площадь, кв.м.63
Жилая площадь22.4
Площадь кухни, кв.м.20.5
Этаж4
Этажность22
Материал стенмонолит
Адрес
СтранаРоссия
Населенный пунктКраснодар
Район городаЦентральный внутригородской округ
Улицанабережная Кубанская
В избранное 1‑к 63 м², Бригантина
Продаётся просторная однокомнатная квартира площадью 63 м² в жилом комплексе «Бригантина» на Кубанской набережной. Дом 2010 года постройки. Квартира находится в собственности одного владельца с момента сдачи дома.
 
Планировка и состояние
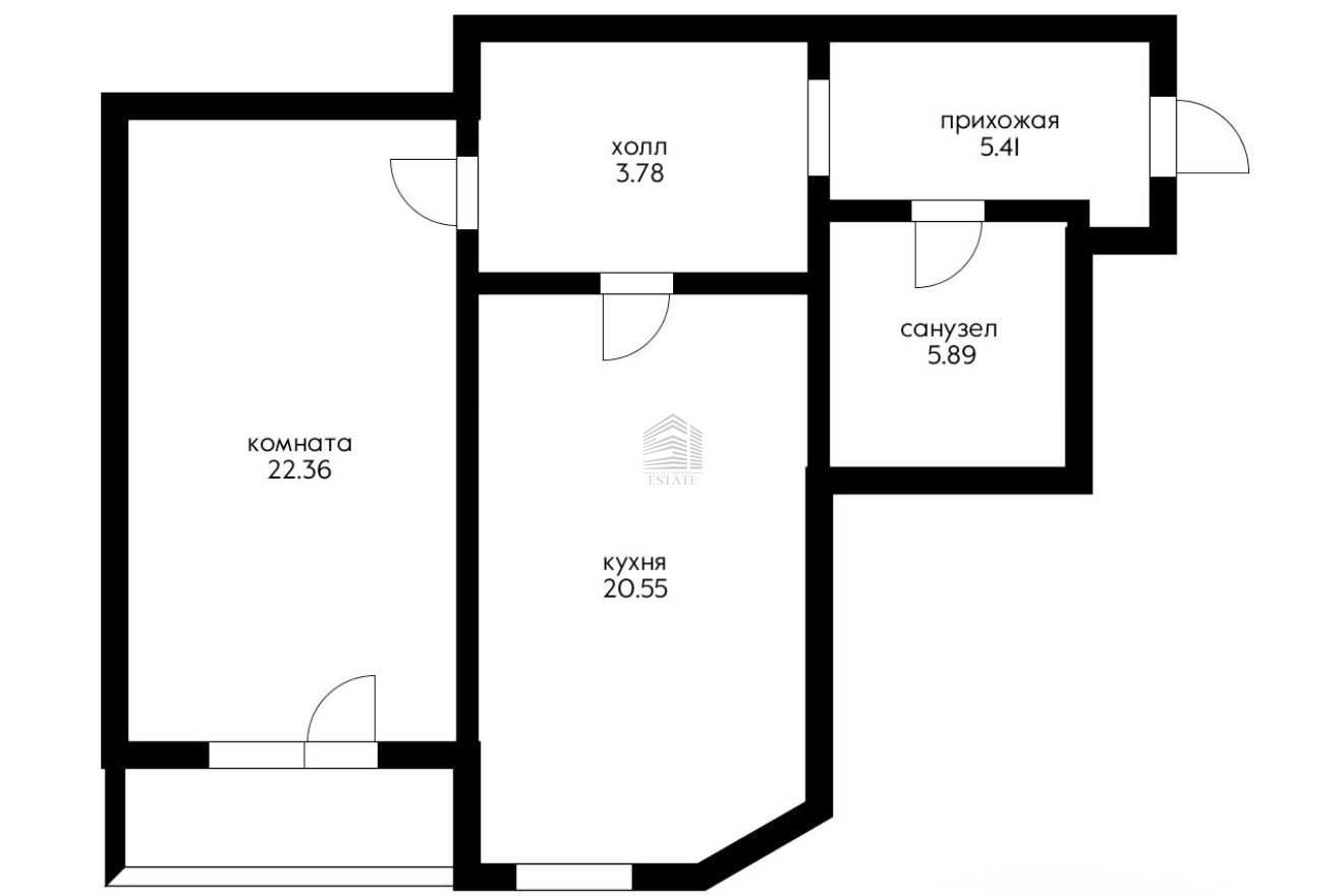
  • Общая площадь — 63 м², кухня‑гостиная — 20,55 м².
  • Большая прихожая, из которой можно оборудовать дополнительную зону отдыха или мини‑гостиную.
  • Лоджия с двумя выходами: на кухню и в спальню.
  • Окна на восток, вид во двор.
  • Требуется косметический ремонт, что позволяет обустроить интерьер по своему вкусу.
Дом и территория
  • Установлен IP‑домофон, круглосуточное видеонаблюдение на территории, в подъезде и лифтах.
  • Закрытая территория с подземным паркингом.
  • Большая детская площадка с одной стороны дома и собственная набережная с другой.
В непосредственной близости — вся необходимая инфраструктура:
  • Супермаркет «Табрис» — 2 минуты пешком;
  • Рядом магазины «Магнит» и «Пятёрочка»;
  • В доме расположены аптека, салон красоты, пункты выдачи Ozon и Wildberries;
  • Удобная транспортная развязка, рядом остановки общественного транспорта.
Звоните, чтобы уточнить детали и договориться о просмотре.

Расположение

Важно! На карте не всегда указано точное местоположение. Более точную информацию можно узнать у менеджера, разместившего объект